PISARNE K / OFFICE SPACES K
Slovenija, Ljubljana
2017-2018
interier / interior: Tina Rugelj, Maja Laurence
sodelavci / associates: Brina Vizjak, Vladimir Avramović
foto / photo: Klemen Razinger
arhitektura / architecture: Edo Mihevc
arhitekturna prenova / architectural rennovation: Tina Rugelj, Maja Laurence
Kontrast med zasebnostjo dejavnosti in odprtostjo pogleda
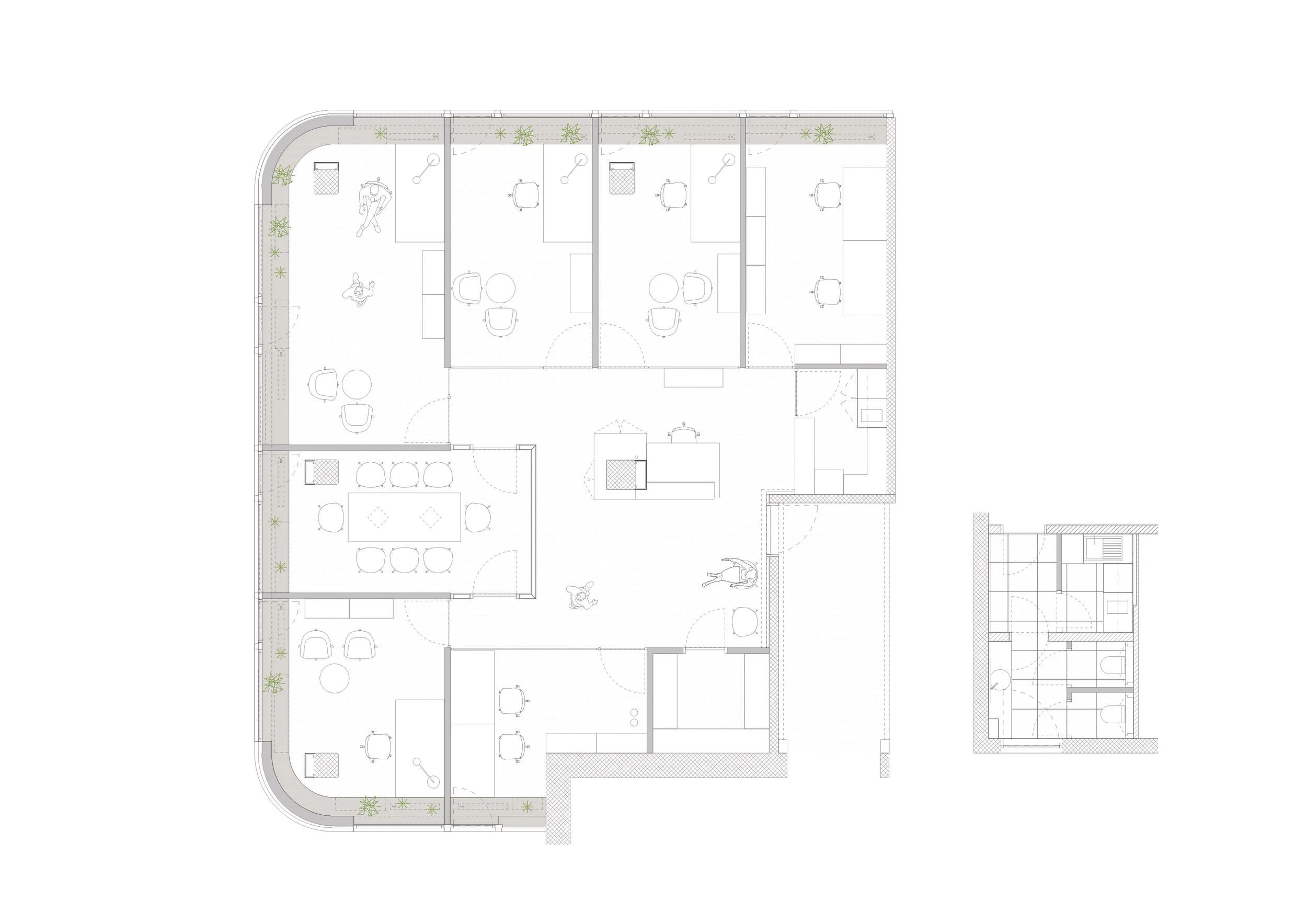
Pisarna v poslovni hiši, ki jo je v 70-ih zasnoval arhitekt Edo Mihevc, je s čudovito panoramo in 157 kvadratnimi metri površine predstavljala poseben izziv. Prostore smo načrtovali za poslovno dejavnost, ki mora zagotavljati določeno stopnjo zasebnosti, hkrati pa smo že ob vstopu želeli zagotoviti doživetje pogleda na silhueto mesta ter ohraniti temeljne lastnosti arhitekture.
Zasnovali smo nekonvencionalen tloris, ki odpira pogled po celotnem prostoru in mestu, a hkrati pušča možnost intime. Pisarne so postavljene po obodu, okrog sprejemnega dela poslovnega prostora, ki je, čeprav je v sredini tlorisa, svetel in prijeten. Sejna soba, ki je lahko večino časa odstrta, izstopa z razlogom in zavzema najlepši pogled. Da svetloba lahko prosto prehaja po površini, so predelne stene med prostori steklene, s posebej izdelanim potiskom.
Oprema je funkcionalna in skrbno načrtovana. Žlahtnost je dosežena z ohranjanjem vidne betonske konstrukcije, kombinaciji naravnega kamna in oblogi v izgledu bakra ter uporabi masivnega hrastovega lesa pri široki polici, parapetu, pod oknom in vhodnem delu. Grafike na steklu so navdahnjene z tistimi iz ljubljanskih secesijskih stavb. Posebna pozornost je posvečena tudi umetni svetlobi; z indirektno svetlobo smo poudarili razmerje med volumni in materiali, luči pa so v prostoru postavljene tako, da lahko dopolnjujejo količino kvalitetne naravne svetlobe glede na čas v dnevu in letni čas.
Vodila nas je uporaba slovenskih materialov in želja po sodelovanju s slovenskimi podjetji, kadar je bilo le mogoče.
/ A contrast between privacy and openness
The office space in a business building from the 70s, designed by the architect Edo Mihevc, represented an interesting challenge. With its 157 square meters and a gorgeous view, it called for a design that would allow for a certain level of privacy yet offer the experience of the panoramic view of the city.
We designed an unconventional layout that ensures privacy and at the same time allows the viewer’s gaze to travel across the entire space and towards the city. The offices are set around the perimeter, with the reception desk in the middle. Despite its central position, the reception is bright and pleasant. The glass partition walls around the office are lined with a custom made print, allowing light to travel across the floor. The meeting room, which stands out because of it has the best view, can stay revealed or become hidden behind a blind.
The furnishings are functional and carefully designed. Nobility is achieved by maintaining the visible concrete structure and by combining natural stone with copper-like lining and solid oak wood (used for a wide shelf, the parapet, under the windows and by the entrance). The graphics on the glass walls are inspired by those found on Ljubljana secession buildings. We gave special attention to artificial lighting and emphasized the relationship between volume and materials with indirect light. The lights are placed so that they complete the amount of natural light according to the time of day and the seasons.
Our design was guided by the use of Slovenian materials and the desire to work with Slovenian companies whenever possible.
