HIŠA 48 / HOUSE 48
Slovenija, Ljubljana
2015-2016
interier / interior: Tina Rugelj, Brina Vizjak
arhitekturna prenova / architectural rennovation: Tina Rugelj
foto / photo: Janez Marolt
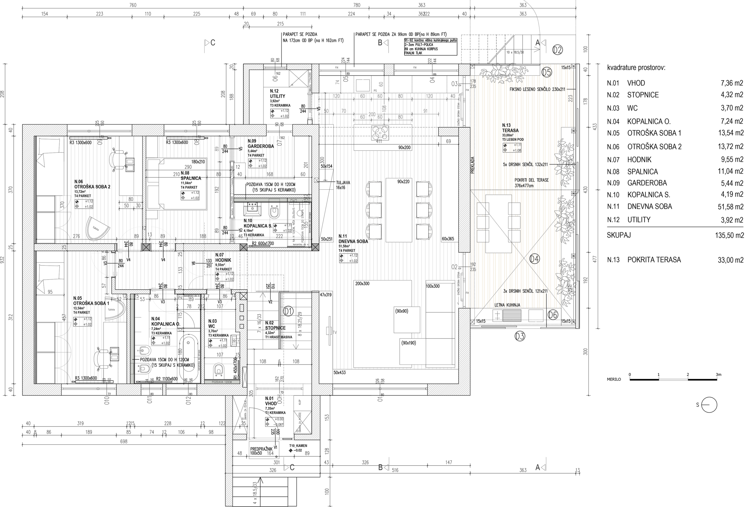
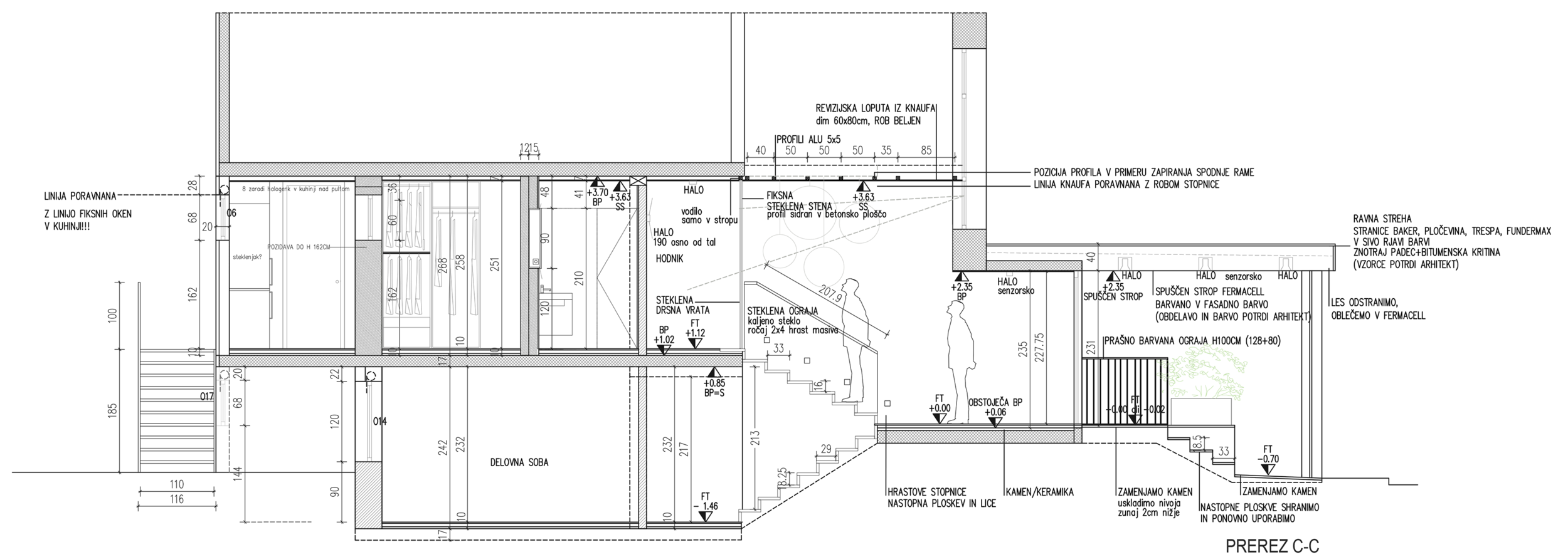
Prenova je zajemala adaptacijo hiše, kjer smo tloris sprojektirali » na novo«. Upoštevati smo morali gabarite, nosilne zidove, dodatne preklade zaradi statičnih ojačitev…Zaradi nižanja stropov zaradi prilagoditve rekuperaciji in statičnim zahtevam, smo na vhodu namenoma pustili visok strop in vnesli v prostor novo dimenzijo. Skozi vhod in okno nad njim v prostor prihaja zahodna svetloba, kar je tudi bil razlog za stekleni del ograje z vrati ob vstopu v dnevni del. Hrastovo stopnišče je glavni element tega stanovanja okrog katerega je bilo veliko podrobnega usklajevanja detajlov. Spalni del s kopalnicami je na levem delu stopnišča, desni se odpira v dnevni prostor s kuhinjo in shrambo ter izstopom na prostorno teraso in vrt. Cilj je bil ohraniti svetlobo iz vseh koncev.
/ The renovation of this old apartment house called for many major improvements. Numerous structural engineering limitations that had to be taken into account prior to remodelling made this project a demanding one. The client wanted a recovery system in the apartment (heating by means of already heated air). Consequently, ceilings had to be lowered and additional pipes hidden from sight. The design of the apartment focused on light penetration. New crossbeams kept the existing big spaces. The ceiling by the entrance is very high and gives the living quarters an overall feeling of openness and airiness. The most prominent feature is the oak staircase, which leads to sleeping quarters and the living area. Once dark rooms are now receiving plenty of daylight.
