STANOVANJE S / APARTMENT S
Slovenija, Ljubljana
2010
interier / interior: Tina Rugelj
arhitekturna prenova / architectural rennovation: Tina Rugelj
foto / photo: osebni arhiv naročnika / investor's personal archive
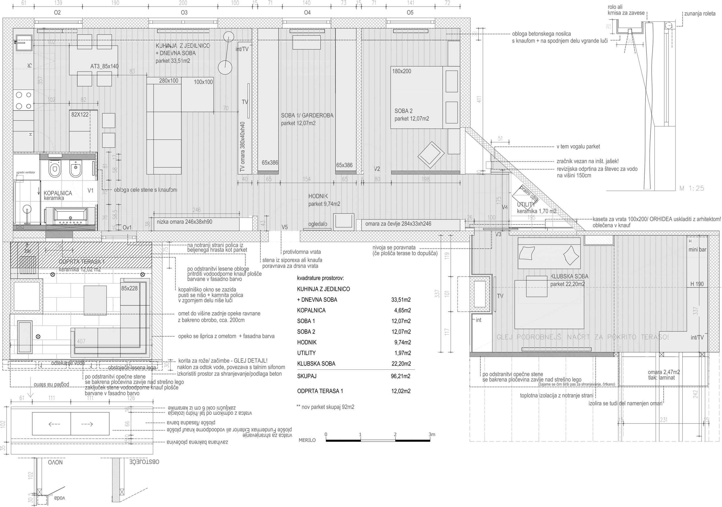
Stanovanje v zadnjem, najvišjem nadstropju bloka v neposredni bližini ljubljanske železnice nudi poleg izredne lokacije tudi veliko svetlobe in občutek izoliranosti od mestnega vrveža v parterju. Stanovanje, ki v osnovi ni nudilo posebnih kvalitet, se je po premišljeni razporeditvi in rušitvi določenih sten spremenilo v prostorno in udobno bivalno okolje. Neuporabna severna terasa se je zaprla, da so naročniki pridobili velik, svetel prostor. Zazidani del je za razliko ostalih v soseski popolnoma nemoteč in skladen z arhitekturo. Veliko je pridobila kopalnica, saj je bila kljub svojemu majhnemu tlorisu maksimalno izkoriščena.
/ The apartment on the top floor of a skyscraper in the vicinity of the Ljubljana Railroad has an excellent location, plenty of light and a feeling of being isolated from the city bustle below. At first, the apartment had no special qualities. This changed when certain walls were taken down and the ground floor was rationalized in order to create a spacious and comfortable living quarters. The unused northern terrace was glazed to provide the clients with an added big and bright space. The walled-in part is entirely inconspicuous and in harmony with architecture, as opposed to the neighbouring buildings. The bathroom was utilised to the maximum despite its modest floor plan.
