HIŠA MJ / HOUSE MJ
Slovenija
2011
interier / interior: Tina Rugelj
arhitektura / architecture: Kombinat arhitekti
foto / photo: Matjaž Tančič in Klemen Ilovar
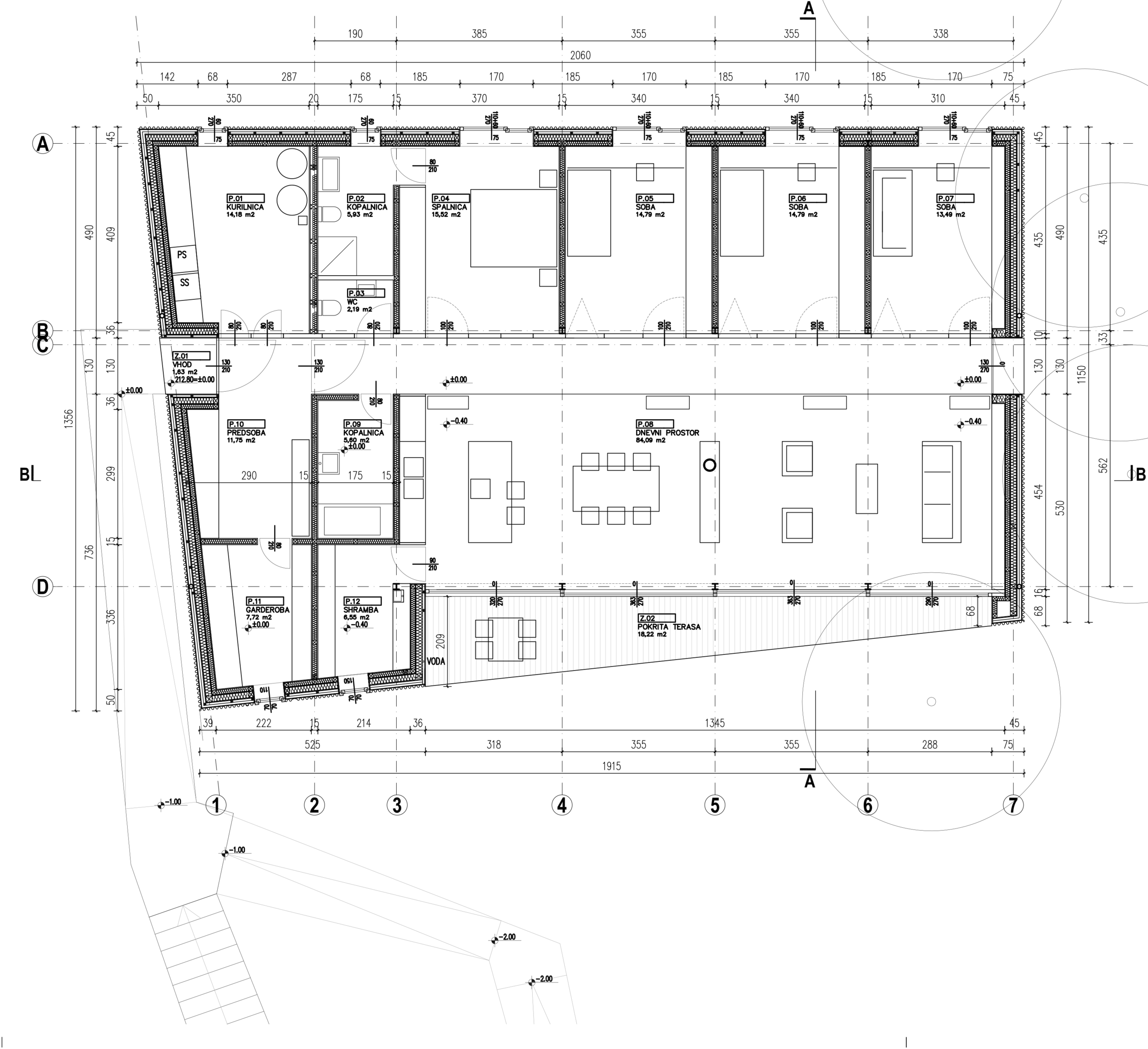
Hiša MJ stoji na robu naselja, na prej nepozidanem travniku med stanovanjskimi hišami in gozdno mejo. Hiša je odmaknjena od ceste in postavljena višje v breg, od koder se odpira razgled na dolino. Zaradi pogledov in konfiguracije terena je hiša usmerjena proti severozahodu. Z rahlim zamikom nivojev se hiša prilagaja terenu, hkrati pa se deli na bivalni in spalni del. Hiša tako nima hodnikov, v sobe se vstopa s podesta, ki je del dnevnega prostora. Oblika strehe omogoča, da dnevni prostor, predprostor in kopalnico osvetljuje tudi dopoldansko sonce. Hiša je montažna, z leseno skeletno konstrukcijo in macesnovo fasado. Garaža z nadstreškom je ločena od hiše in stoji tik ob cesti. Vkopana je v brežino, tako da ne ovira pogledov na dolino. Sledi lesenega opaža na vidni betonski konstrukciji vzpostavljajo dialog med garažo in hišo.
/ The MJ House stands on the edge of a settlement, on an undeveloped meadow, between residential homes and the forest. It is far from the road and built into a slope from where the entire valley can be seen. The views and the configuration of the terrain determined the NW position of the house. A delicate shift in levels allows the house to adjust to the terrain while dividing it into living and sleeping quarters. Consequently, there are no corridors. The entry to the rooms is from the landing, which is part of the living room. The design of the roof allows the morning sun to light the living room, lobby and bathroom. The house is prefabricated, with a wooden skeletal construction and larch facade. The garage with a jutting roof is built separately and next to the road. It is dug into a slope and does not obstruct the view of the valley. The marks of wooden panelling on the exposed concrete construction form a dialogue between the garage and the house.
